Professor Richard Rosa
Individual Work
Fall 2023
Individual Work
Fall 2023
The Unite d’Habitation was Le Corbusier’s realization of une cite-jardin verticale, or a vertical garden city. In a utilitarian bar housing complex, the project aims to recreate a Mediterranian way of life. It has all the amenities that a resident would need, including a food depot, gym, nursery and kindergarten, hotel for guests, restaurant and bar, medical services, laundry, youth clubs, stationary, florist, hairdresser, confectionary, bakery, bookstore, post office, library, pool, playscape, stage, running track, and much more. These amenities are located on the seventh, eight, and 17th floors and roof terrace, at convenient locations where all residents can access.
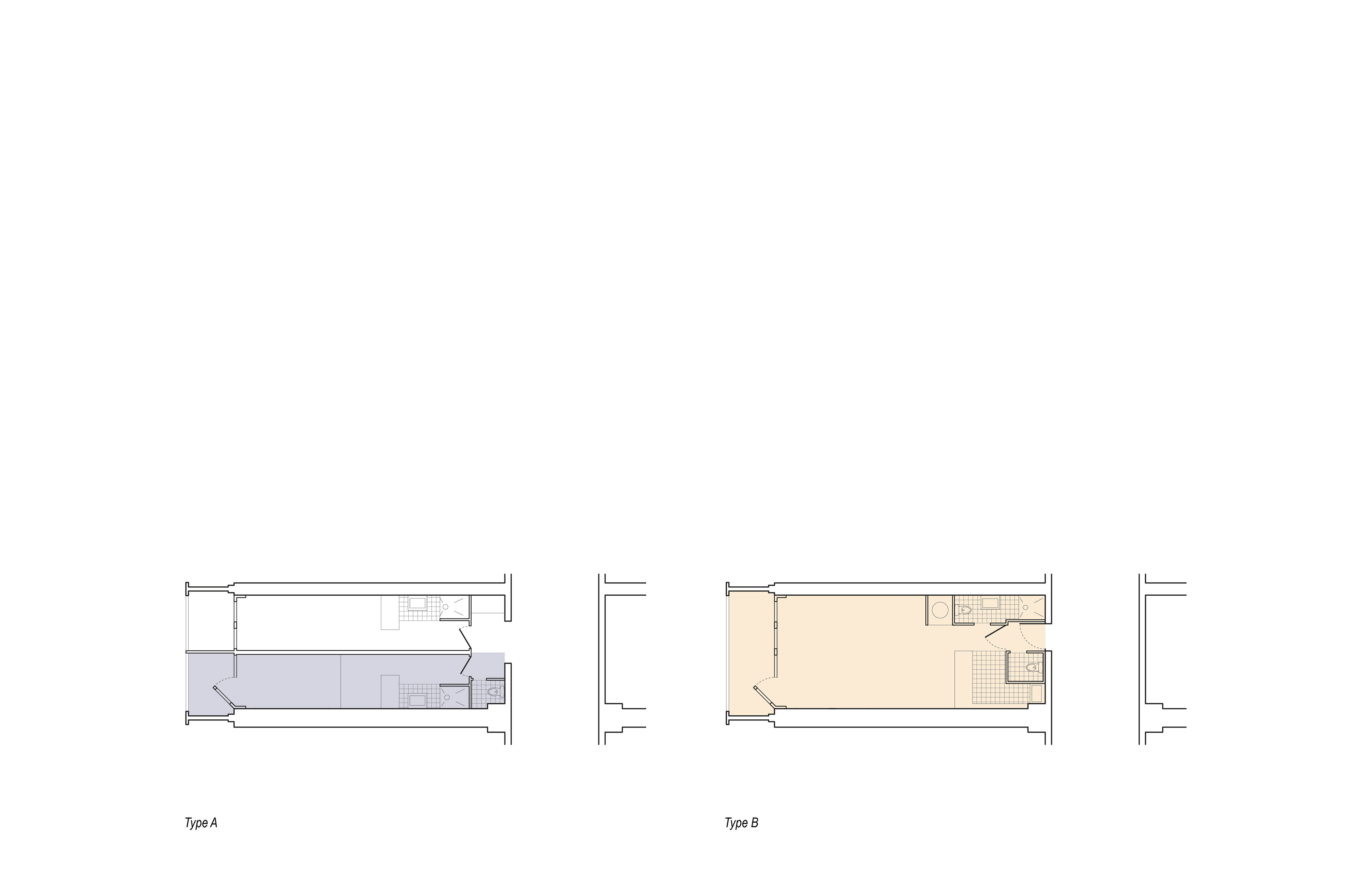
While the form of the housing project is a very straightforward bar type, the interior organization is very complex. Each unit traverses two floors, which means that the hallway, or interior street, only occurs every three floors, saving space, and leaving more of it for more spacious units. These interior streets also aim to give the feeling of a typical residential street. The units interlock with each other like a puzzle, producing complex sectional and planar conditions.
While the form of the housing project is a very straightforward bar type, the interior organization is very complex. Each unit traverses two floors, which means that the hallway, or interior street, only occurs every three floors, saving space, and leaving more of it for more spacious units. These interior streets also aim to give the feeling of a typical residential street. The units interlock with each other like a puzzle, producing complex sectional and planar conditions.
There are eight main types of units, but because of the interlocking nature, six of these types (C, E1, E2, G1, G2, G3) have a ‘superior’ (above) and ‘inferior’ (below) version. Each type of unit has a different number of bedrooms, to accomodate families of a variety of sizes, from single bachelors to couples to families with one child to families with four children. The most common unit is type E2, which transverses across the width of the bar, allowing the resident outdoor access to two cardinal directions. This through access also exemplifies Le Corbusier’s aspirations to design at the human scale and the design for human needs. The foremost human need in housing is light and air, which the various units allow with the through access which creates cross ventilation and daylight from morning to night. The cross ventilation is enabled by two-floor units, which most units have, and this also allows for more vertically spacious area in the house. Moreover, all units have a balcony. The balconies are created from the brise-soleil, or sun break, that extend from the surface of the building, to help shade the interior spaces when the sun is intense
While the Unite doesn’t visually resemble Le Corbusier’s other projects, namely the whiteness and flatness characterized by his more famous earlier projects like VWilla Savoye or Villa Garches, Unite does fall within his later era’s beton-brut and brise-soleil style. More importantly, however, his continued focus on his Five Points of Architecture, are evident throughout his notable projects, including in the Unite. The Unite stands above the ground on pilotis, has a gridded structure to allow for the free arrangement of program spaces, has a roof terrace to promote healthy living, is banded by windows that are shaded by brise-soleil, which are all separate from the cage-like structure within.
Unite d’Habitation was designed to solve the post-WWI housing problem, but it didn’t aim to solve the issue in a compromising manner. Because space is saved with the interior streets occurring every three floors, there is room for plenty of amenities, there is room for spacious units. The features elevate the dignity of those who would live in these public housing units.
The Unite is a development of Le Corbusier’s Immeuble Villa and the Espirit Nouveau prototype, which has many of the same design characteristics, including private outdoor access, sectional units, a roof terrace, and a variety of amenities. These design concepts were informed by Le Corbusier’s early career visits to the Carthusian Monastery of Ema, near Florence, Italy. Each cell unit is private, inward-looking, and self-sufficient with ample light and air, but when interlocked, the building is collective and communal, with activity and healthy living amenities.